Ian Kearns Design
Residential Design, Graphics, & Illustration
WORK
ABOUT
Ian Kearns Design
Residential Design, Graphics, & Illustration
WORK
ABOUT
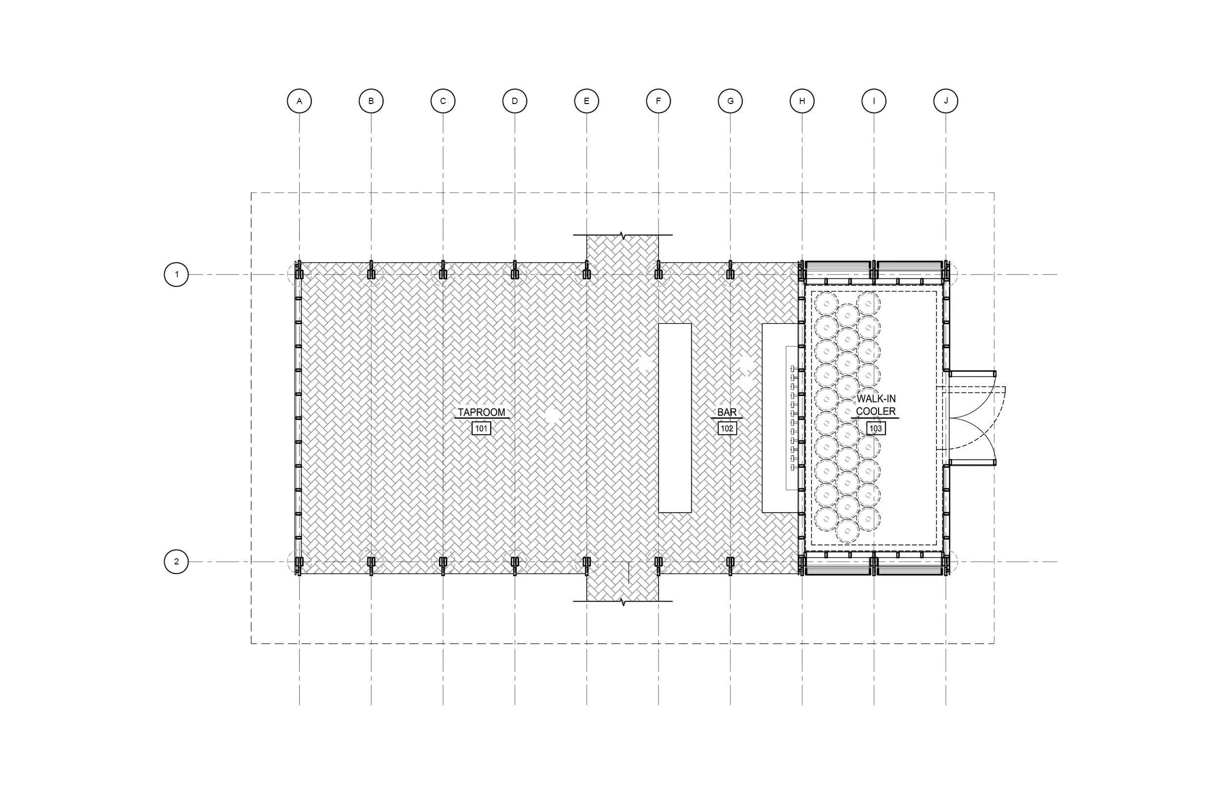
Hog's Back Brew Farm
A shelter/bar/cooler designed for Hog’s Back Brew Farm at Ecker’s apple farm in Centerville, WI.
1
2
3
4
5
6
Previous
Next
All
Kearns Residence
Hog's Back Brew Farm
The Northfarm
Orchard Stage
Drift
Trempealeau Ad Campaign
Shirley M Wright Library Sign
FOFO Fish
Kearns Residence
Hog's Back Brew Farm
The Northfarm
Orchard Stage
Drift
Trempealeau Ad Campaign
Shirley M Wright Library Sign
FOFO Fish