Ian Kearns Design
Residential Design, Graphics, & Illustration
WORK
ABOUT
Ian Kearns Design
Residential Design, Graphics, & Illustration
WORK
ABOUT
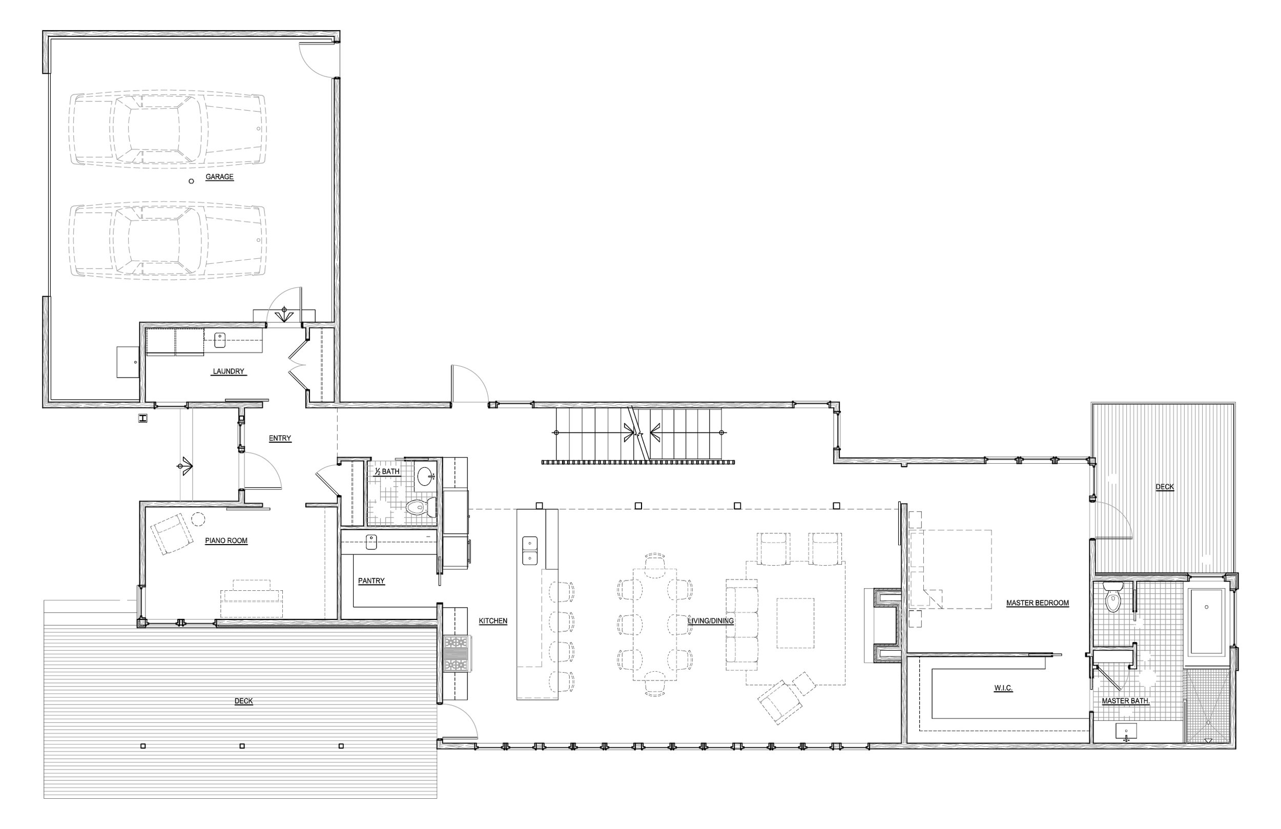
Kearns Residence
Kearns Residence
A new home designed for the people that raised me.
1
2
3
4
5
6
7
8
Previous
Next
All
Kearns Residence
Hog's Back Brew Farm
The Northfarm
Orchard Stage
Drift
Trempealeau Ad Campaign
Shirley M Wright Library Sign
FOFO Fish
Kearns Residence
Hog's Back Brew Farm
The Northfarm
Orchard Stage
Drift
Trempealeau Ad Campaign
Shirley M Wright Library Sign
FOFO Fish