Residential Design, Graphics, & Illustration
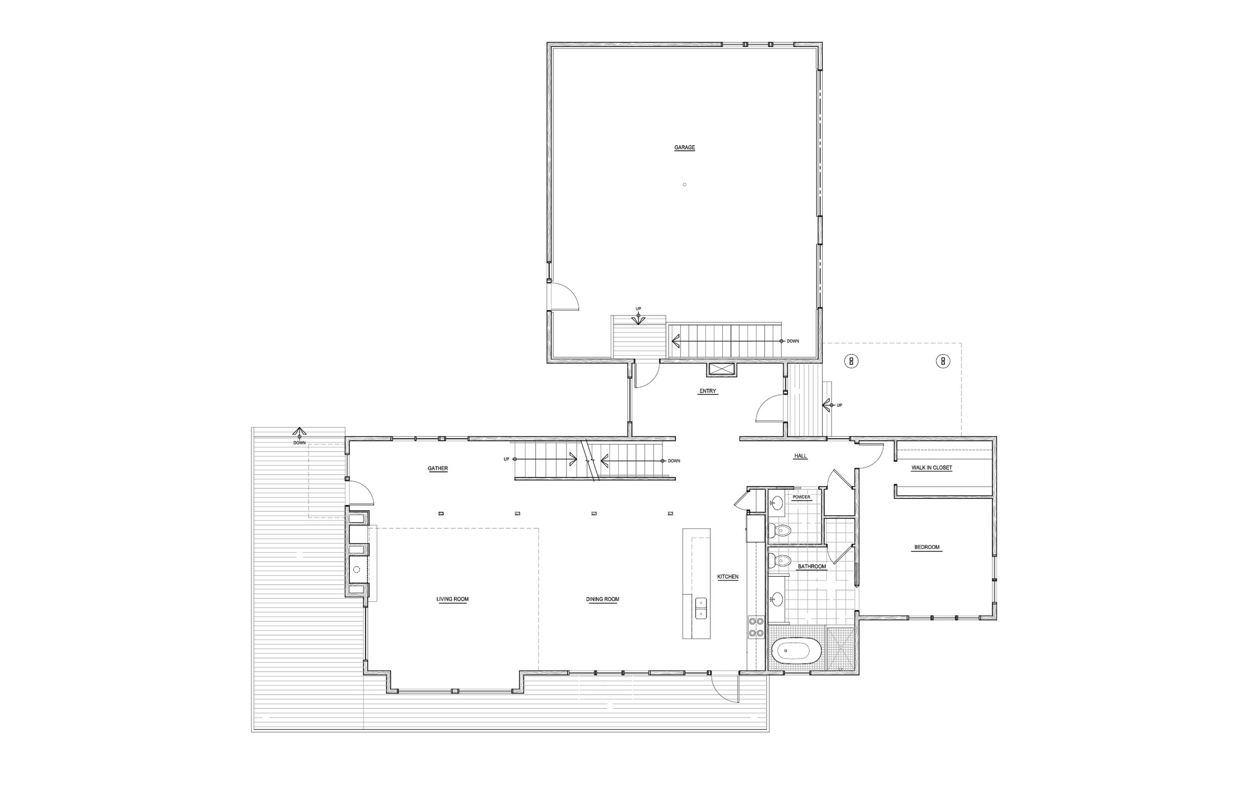
 The Northfarm was designed as a VRBO rental while also serving as a seasonal getaway for the family.  Located in Praag, Wisconsin.

The Northfarm